NSE系列高速板鏈斗式提升機

概述
NSE系列高速板鏈斗式提升機是奧普公司引進國外同類產品先進技術開發的一種新型垂直提升設備。在各工業國家,這類產品被廣泛用于提升粉狀和小顆粒狀物料。
NSE系列高速板鏈斗式提升機共有九種基本型號:NSE100、NSE200、NSE300、NSE400、NSE500、NSE600、NSE700、NSE800、NSE1000,每種型號根據輸送物料的不同,選擇不同的提升速度,提升速度上限<70m/min,提升高度上限65m。另外,奧普公司還可根據用戶要求輸送量介于上述型號之間的擴展型號。
NSE100 - 20.5m一170m3/h -右裝
提升機裝配形式
額定輸送量(立方米每小時)
提升高度(米)
高效板鏈式提升
注:提升機裝配型式的識別
▲左裝一指人在進料口一側,面對進料口,驅動裝置在左邊。
▲右裝一指人在進料口一側,面對進料口,驅動裝置在右邊。
結構
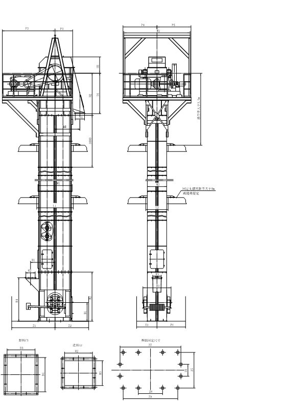
NSE板鏈式提升機由運行部件、驅動裝置、上部裝置、中部機殼、下部裝置組成。
運行部件--由料斗和套筒滾子鏈組成。
驅動裝置--由驅動平臺、驅動組合、傳動鏈組成。驅動組合分為兩種:①鏈傳動:通常由ZSY硬齒面減速機(或JZQ減速機)、YOX液力偶合器、Y系列電機、XWD減速機、電磁離合器(或手動離合器)組成;②直聯:采用直交軸硬齒面減速機與提升機主軸直聯,Y系列電機與減速機之間#用偶合器(聯軸器)聯接。
驅動裝置分左裝和右裝兩種。分別與提升機左、右裝對應。
左裝:為人面對進料口,驅動裝置組合在左側。
右裝:為人面對進料口,驅動裝置組合在右側。
上部裝置--有上部機殼、上罩、卸料口(裝有防回料板)、頭軸裝配、逆止器等部件。
中部機殼--分為與上部裝置聯接的帶支撐中間節、帶檢視門中間節、標準中間節(均為3.0米高)和非標準中間節。
下部裝置--包括下部機殼、進料口、尾軸裝配、張緊裝置,并有旋轉探測儀、料位開關供選配。
選型參數
NSE50-NSE600HH型提升機的常用提升量、提升高度分別見表1-8.
選擇NSE700、NSE800、NSE1000型提升機時,請與公司技術部聯系。
.png)
.png)
.png)
.png)
.png)
.png)
.png)
.png)
.png)
.png)
.png)
.png)
.png)


