IBAU均化庫
概 述
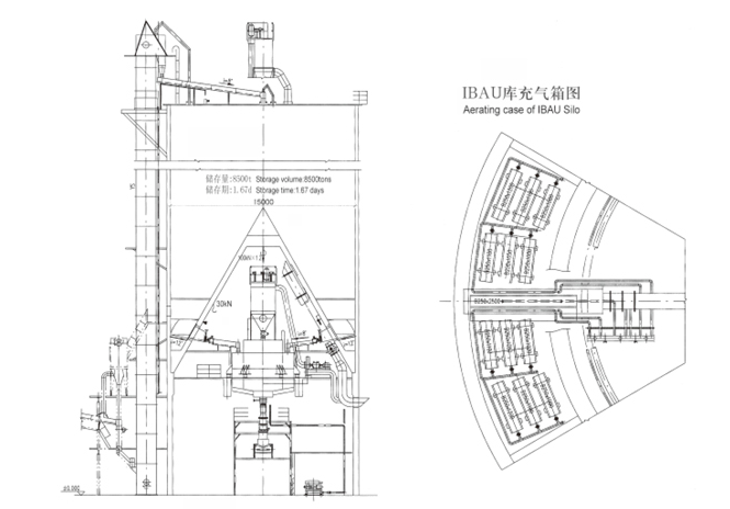
IBAU均化庫是我們南通江森機械制造有限公司采用德國尹堡公司的連續均化技術,經國產化設計在水泥行業得到廣泛應用的一款均化設備。均化庫的庫底中心設一大圓錐,庫內生料的重量通過該錐體傳遞給庫壁,庫底環形空間分成向中心傾斜10°的6個(或多個)充氣區,每個充氣區設一個卸料口,卸料口的上方用一個徑向放置的減壓錐將料層隔開,不讓卸料口上方的料流直接進入卸料口,整個環形區生料在各區中有兩個以自上而下切割水平料層的流動而產生重力混合均化的料柱,再經卸料口兩側形成料流的對流混合流向卸料口,圓錐下設外攪拌倉,各區的生料循環進入攪拌倉后,經連續強烈的充氣攪拌得到進一步均化。均化比為6-8,耗電為0.1-0.2kW/t。

技術參數表
.jpg)
IBAU庫示意圖
.png)

技術參數表
.jpg)
|
序號 |
名稱 |
規格 |
數量 |
備注 |
|
1 |
收塵器 |
PPCS-32-4 |
1臺 |
按工藝風量選型 |
|
2 |
收塵器 |
PPCS-32-3 |
1臺 |
按工藝風量選型 |
|
3 |
庫頂空氣輸送斜槽 |
XZ400 |
1臺 |
能力200t/h |
|
4 |
充氣箱及管道 |
工藝定 |
1套 |
|
|
5 |
庫底卸料裝置 |
B250 |
6套 |
能力:110t/h |
|
6 |
計量倉卸料裝置 |
B500/400 |
2套 |
能力:220t/h |
|
7 |
出料空氣斜槽 |
XZ400 |
1臺 |
工藝定 |
|
8 |
氣動球閥 |
DN80 |
6臺 |
|
|
9 |
氣動球閥 |
DN100 |
12臺 |
|
|
10 |
羅茨風機 |
工藝定 |
4臺 |
|
|
11 |
庫頂人孔門 |
700 00 |
1臺 |
|
|
12 |
庫側人孔門 |
600 00 |
1臺 |
|


